緑ヶ丘南町貸家 河内長野市緑ケ丘南町[戸建]

緑ヶ丘南町貸家 河内長野市緑ケ丘南町[戸建]

戸建[河内長野市緑ケ丘南町]

大阪狭山市、金剛賃貸の物件をお探しなら ミニミニFC金剛店

  • 072-368-7878
  • 9:30~18:30/定休日:水曜日

棟詳細

緑ヶ丘南町貸家 河内長野市緑ケ丘南町 戸建

緑ヶ丘南町貸家 河内長野市緑ケ丘南町[戸建]の棟詳細ページです。

物件種別:戸建

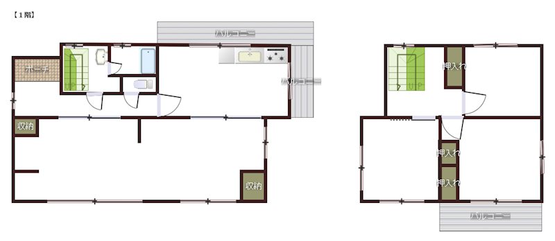
間取り(面積)

3LDK

( 107.59㎡)

賃料

7.0万円

交通: 南海高野線 三日市町駅 徒歩53分

所在地: 河内長野市緑ケ丘南町

築年月: 1982年8月

管理費等の月次金がかかることがあります。詳細は各部屋のページでご確認ください。
 
  • 洋室
  • ダイニング

  • ※代表的なお部屋の写真と物件情報になります。タイプによっては一部仕様・眺望等が異なる場合があります。
  • ※お部屋により現況と異なる場合は現況を優先いたします。



所在地 大阪府河内長野市緑ケ丘南町 周辺地図
交通 南海高野線 三日市町駅 徒歩53分
南海高野線 河内長野駅 徒歩46分
近鉄長野線 河内長野駅 徒歩46分
賃料 7.0万円
築年月 1982年8月 (築43年)
延床面積 107.59㎡ (32.54坪)
建物構造 木造 登録空きフロア計 107.59㎡ (32.54坪)
総戸数 規模 2階建/ 地下1階建



所在階 賃料 管理費/共益費 敷金/礼金 間取り 専有面積 詳細

1-2階 7.0万円

-

/ 0円

-

/ -

3LDK

107.59㎡

(32.54坪)

緑ヶ丘南町貸家 の詳細ページ


  • ※間取りの「S」はサービスルーム(納戸)です。

ホームへ戻る

Copyright (C) 金剛賃貸情報サイト All rights reserved.